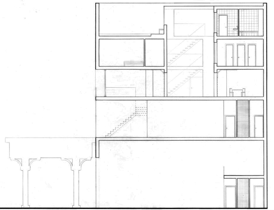
A house next to the High Line in New York, conceived as an inward-facing space with a courtyard, a respite from busy city life. The building features commercial spaces at street and high-line level with a three-storey, three-bedroom apartment above.





A house next to the High Line in New York, conceived as an inward-facing space with a courtyard, a respite from busy city life. The building features commercial spaces at street and high-line level with a three-storey, three-bedroom apartment above.




