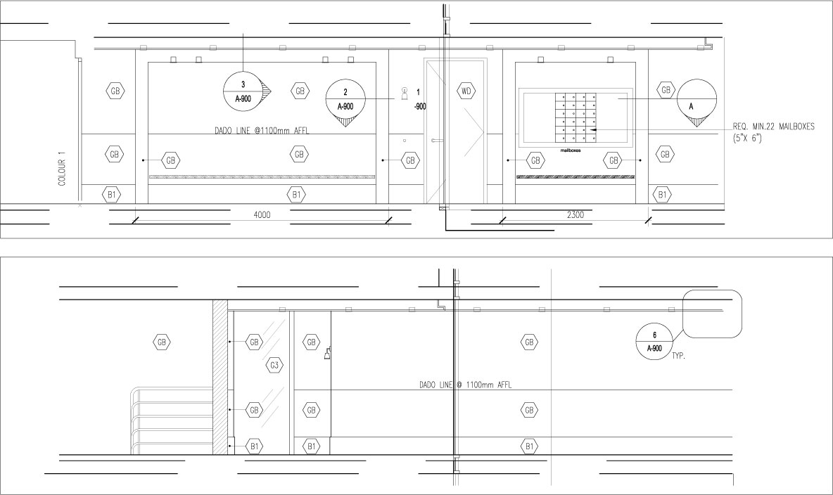
As an architectural assistant at Diamond Schmitt Architects, I contributed to design development and drafted construction drawings in AutoCAD for mid-rise residential developments in Obzor and Kavarna, Bulgaria. I also assisted with the creation of marketing and sales materials for yoo, the developer of the projects.


