
This design for a hotel with an extensive public program included consideration of the implications of creating public space in a privately owned building, as well as the connections between public and private uses. The preservation and incorporation of an existing two-storey brick warehouse building was privileged due to a desire to maintain some of the original urban fabric of the neighbourhood, as well as the building’s simple, utilitarian qualities, which lent it very well to accommodating changing uses.
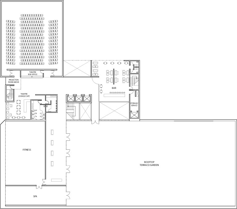
The public outdoor space of this project is pulled in two directions: an inner, more secluded rooftop terrace, along with a forecourt off King Street. The small square on King is an extension of the sidewalk, whereas the terrace is a destination, a small urban park connected to the public levels of the hotel. These public spaces are intended to be as interactive as possible, with continuous, open stairs from the ground up to the third storey. Movement and observation is fluid as individual hotel guests and the public mix among the levels.
The design project was preceded by a mapping exercise that focused on the architectural history of the intersection of King and Spadina.


Photographer: Magdalena Miłosz












